Projekt Juure
Kaasaegne kortermaja, mis on mõeldud mugavaks elamiseks kuues eraldi korteris. Fassaadi puhtad jooned ja läbimõeldud planeering rõhutavad kaasaegset stiili ning loovad hubase ja mugava eluruumi.
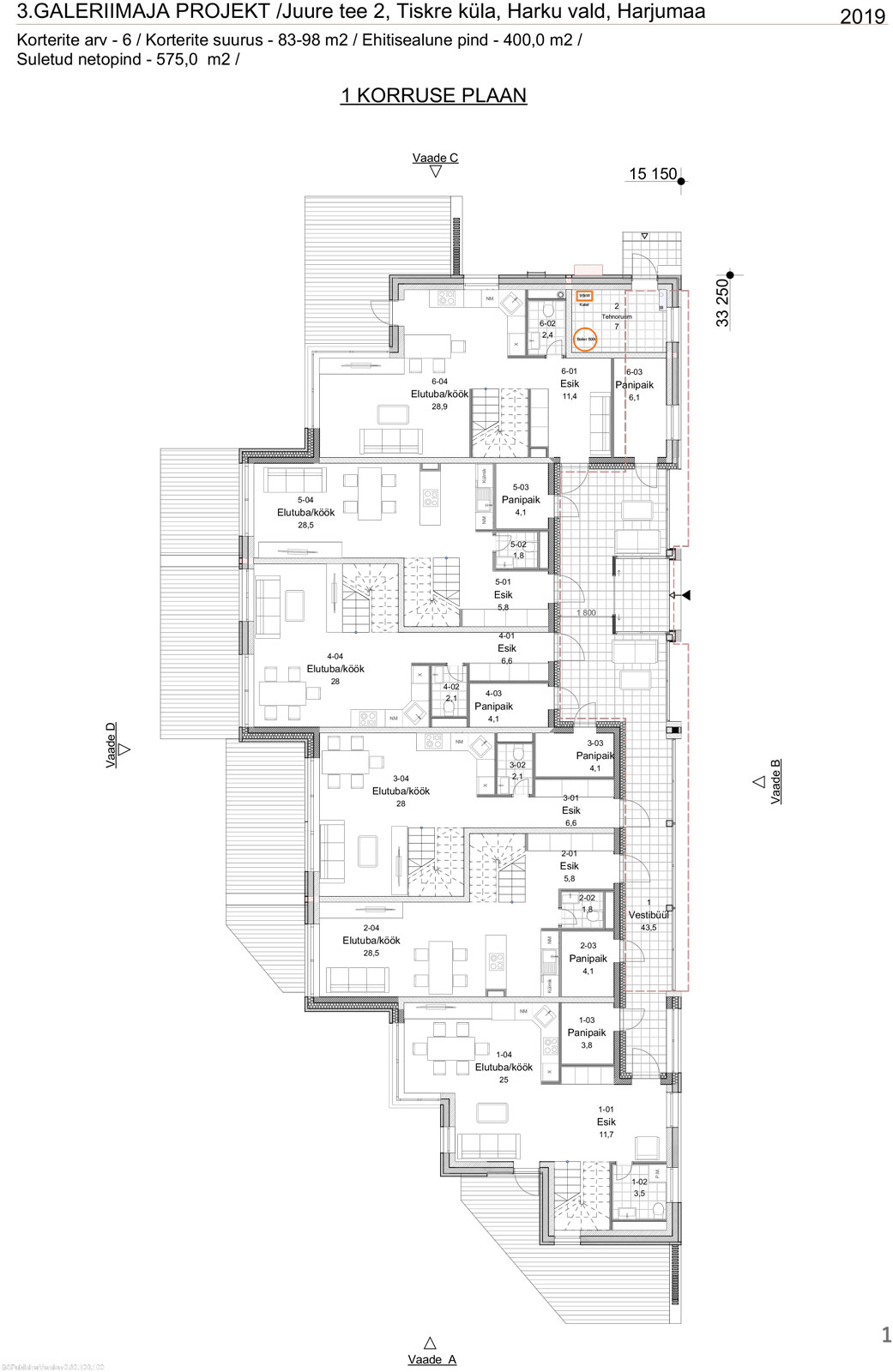
Pindala: 400 m²
6 korterit, korteri pindala – 83-98 m²
6 korterit, korteri pindala – 83-98 m²
