Projekt Põllu
See valgusküllane kahekorruseline maja ühendab suurepäraselt kaasaegse arhitektuuri ja klassikalised elemendid. Selle maja kujundus sobib ideaalselt mugavaks maaeluks. Valgusküllane fassaad, avarad aknad ja hoolikalt kujundatud aed loovad harmoonilise kombinatsiooni funktsionaalsusest ja esteetikast.
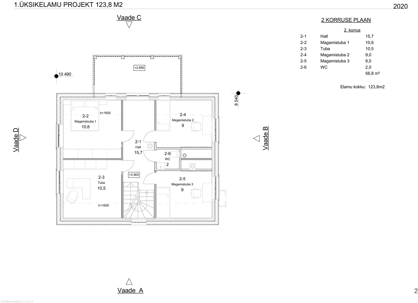
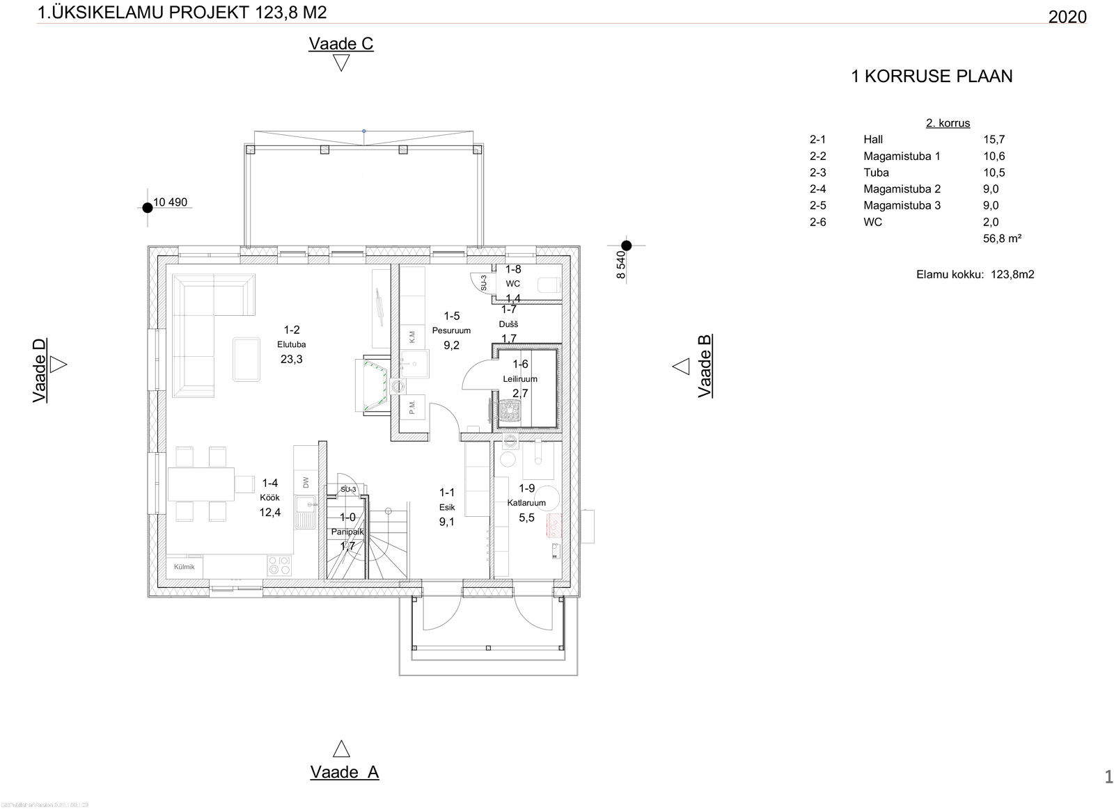
Pindala: 123,8 m²
3 magamistuba, kabinet, leiliruum
3 magamistuba, kabinet, leiliruum
