Projekt Tulbi
Kahekorruseline kahepereelamu garaažiga. Avar ja funktsionaalne projekt, mis tagab mugava elamise kahele perele. Kahe auto garaaž, eraldi sissepääsud ja läbimõeldud planeering loovad mugava ja hubase eluruumi.
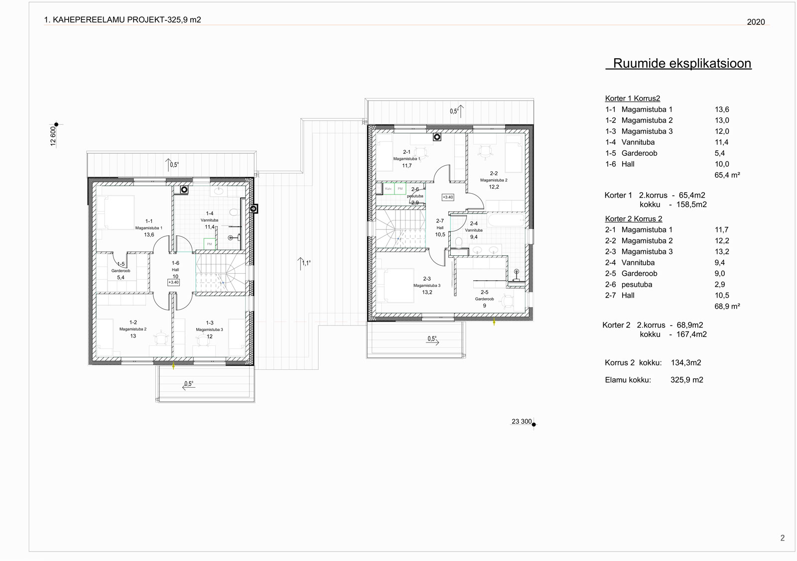
Pindala: 325,9 m²
2 korterit, garaaž, 3 magamistuba
2 korterit, garaaž, 3 magamistuba
